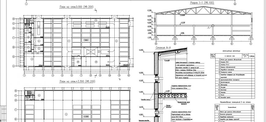
Чертежи промышленное двухэтажного здание из металлокаркаса в программе Автокад.
Работа состоит из 2 листов формата А1.
Работа состоит из 2 листов формата А1.
забирай на стену, чтобы не потерять
Примеры работ по строительным специальностям:
Была данная статья полезной?
Да
57.89%
Свой вариант
42.11%
Проголосовало: 19
