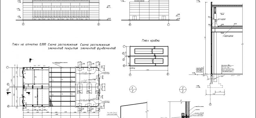
Чертежи промышленного здания в программе Автокад
скачивай для примера
скачивай для примера
#промздание #курсач #курсовая работа
Примеры работ по строительным специальностям:
Была данная статья полезной?
Да
58.82%
Свой вариант
41.18%
Проголосовало: 17
