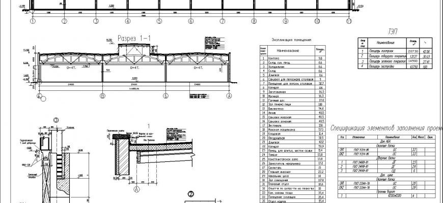
Чертежи промздания, хорошая основа для курсового проекта
скачивай для примера
скачивай для примера
Примеры работ по строительным специальностям:
Была данная статья полезной?
Да
58.82%
Свой вариант
41.18%
Проголосовало: 17
