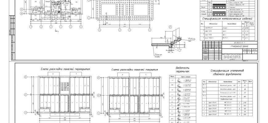
Чертежи пятиэтажного здания в программе Автокад
В состав проекта входит:
фасад
план первого этажа
раскладка свайного поля
раскладка плит перекрытия и покрытия
план кровли
разрез
узлы и таблицы
Примеры работ по строительным специальностям:
Была данная статья полезной?
Да
57.89%
Свой вариант
42.11%
Проголосовало: 19
