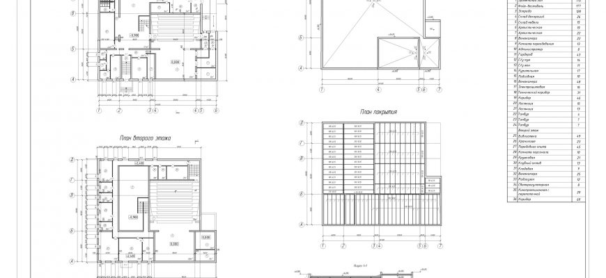
Чертежи сельского клуба в Автокаде
Написать в MAXНаписать в TelegramНаписать в WhatsApp
или напишите нам прямо сейчас
⚠️ Пожалуйста, пишите в MAX или заполните форму выше.
В России Telegram и WhatsApp блокируют - сообщения могут не дойти.
Примеры работ по строительным специальностям:
или напишите нам прямо сейчас
⚠️ Пожалуйста, пишите в MAX или заполните форму выше.
В России Telegram и WhatsApp блокируют - сообщения могут не дойти.
Была данная статья полезной?
Да
57.14%
Свой вариант
42.86%
Проголосовало: 21
