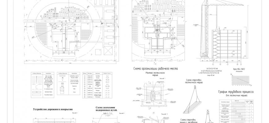
Чертежи стройгенплана и техкарты на монтаж лестничных маршей в Автокаде. В нашем ТГ, ссылка на него в комментариях
Примеры работ по строительным специальностям:
Была данная статья полезной?
Да
58.82%
Свой вариант
41.18%
Проголосовало: 17
