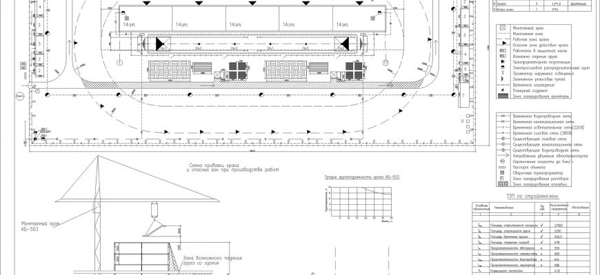
Чертежи стройгенплана в Автокаде
Все файлы для скачивания с хэштегом доступны только донам (платным подписчикам)
#стройгенплан
Примеры работ по строительным специальностям:
Была данная статья полезной?
Да
57.89%
Свой вариант
42.11%
Проголосовало: 19
