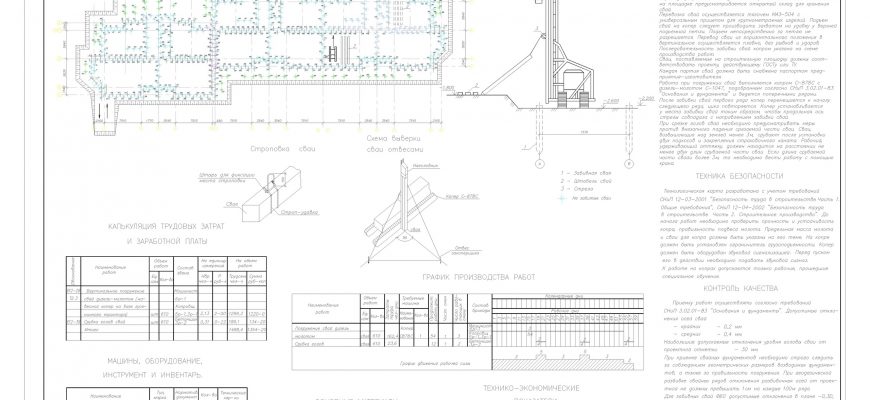
Чертежи техкарты на устройство свайного поля. Скачать файл можно в нашей телеге, за ссылкой — оставь заявку через форму
Примеры работ по строительным специальностям:
Была данная статья полезной?
Да
58.82%
Свой вариант
41.18%
Проголосовало: 17
