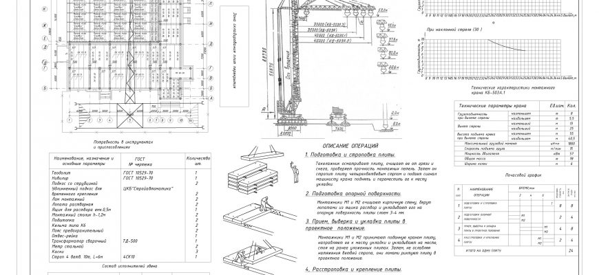
Чертежи технологических карт на монтаж фундамента и плит покрытия
Файлы автокада для скачивания доступны
Примеры работ по строительным специальностям:
Была данная статья полезной?
Да
57.89%
Свой вариант
42.11%
Проголосовало: 19
