Чертежи торгового центра в программе КОМПАС
Файл КОМПАСА для скачивания доступны
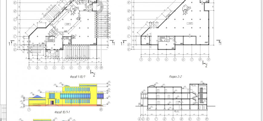
Состав проекта:
планы 1-го, 2-го и 3-го этажа и план подвала
все фасады
разрезы продольный и поперечный
Примеры работ по строительным специальностям:
Была данная статья полезной?
Да
57.89%
Свой вариант
42.11%
Проголосовало: 19
